Socios para un servicio
integral y personalizado
Con una sólida experiencia internacional y profundo conocimiento del sector salud en Chile, somos su aliado estratégico para desarrollar proyectos únicos y diferenciados. Trabajamos con un proceso integral de seis etapas, que comienza entendiendo su realidad para ofrecer soluciones que respondan a las necesidades de su institución y garanticen resultados exitosos.
A continuación, presentamos las seis etapas del proceso.
Entendemos
tus necesidades
Esta etapa es la más importante, para definir los objetivos del proyecto. En conocimiento de lo que resulta más importante para nuestros clientes, el equipo de trabajo de Logística Integral se pondrá a su entera disposición para asesorar, proponer y aportar nuevas ideas para brindar soluciones que nos permitan llegar a un exitoso resultado. En esta etapa se efectúa el levantamiento del espacio físico disponible, volúmenes de almacenamiento, flujos de trabajo y personal disponible.








Proponemos diferente alternativas
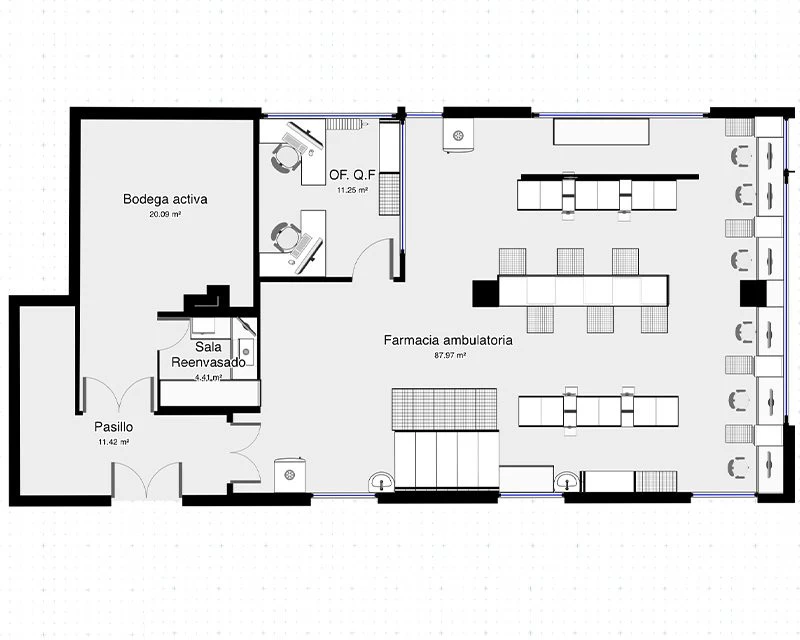
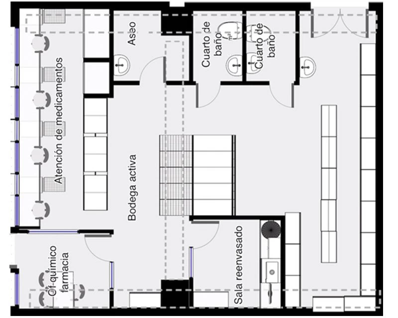
Habitualmente, no existe una solución única, por lo cual evaluamos diferentes diseños y propuestas que permitan realizar su gestión en forma más eficiente, en un ambiente de total agrado y que se adapten a su presupuesto. En esta etapa nuestros ingenieros y diseñadores, presentan el plano de planta desarrollado en AutoCAD®, que incluye las diferentes propuestas que son susceptibles de ser modificadas, a fin de obtener la información precisa para comenzar a desarrollar la solución final.
Presentamos el diseño final
En base a la información obtenida, se presentan vistas tridimensionales, las cuales son una imagen digital, a partir del plano definido en la etapa 2. En esta etapa se afinan los últimos detalles, tanto de producción, como de la futura implementación. Para llegar a un acuerdo final, se firma la propuesta definitiva seleccionada, en espera de realizar el proceso adquisición, público o privado, que formalizará la ejecución del proyecto.








Implementamos lo que necesites
Una vez recibida la orden de compra, se envía a producción los equipos, mobiliario e insumos seleccionados. El periodo de tiempo de esta etapa dependerá de los productos disponible en plaza. Por lo general, los modelos más solicitados se encuentran disponibles en entrega inmediata. En esta etapa se planifican los tiempos de implementación y puesta en marcha.
Capacitamos
a su personal
En el área de la salud, las prestaciones y servicios no pueden detenerse, por lo cual en conjunto determinamos la mejor fecha para la implementación, considerando incluso los fines de semana, sin recargo adicional.
La capacitación del personal, en el correcto uso y mantención de los equipos/mobiliario, se efectúa por profesionales capacitados en fábrica y se emite el certificado correspondiente al usuario que ha aprobado esta actividad. Al finalizar esta etapa, comienza la puesta en marcha.








Completo servicio al cliente
Somos una empresa reconocida por dar un excelente servicio post venta, siendo éste un pilar fundamental en nuestra filosofía de trabajo. Nuestros equipos cuentan con una amplia garantía en piezas, partes y funcionamiento, extensible de común acuerdo.
Nuestros productos tienen una vida útil prolongada, contando con la mantención respectiva. Ofrecemos contratos de mantención, para todo el portafolio de nuestros productos.
Activa el hospital
inteligente
Haz clic y agenda tu diagnóstico integral: descubre cómo Loginteg convierte cada área crítica en un engranaje de precisión al servicio de la salud.
